IRS Tax Forms  
Publication 587 2000 Tax Year

Schedule C Example

The filled-in forms for John Stephens that follow show how to report deductions for the business use of your home if you file Schedule C (Form 1040). Only the expenses and information that relate to the business use of the home are discussed.

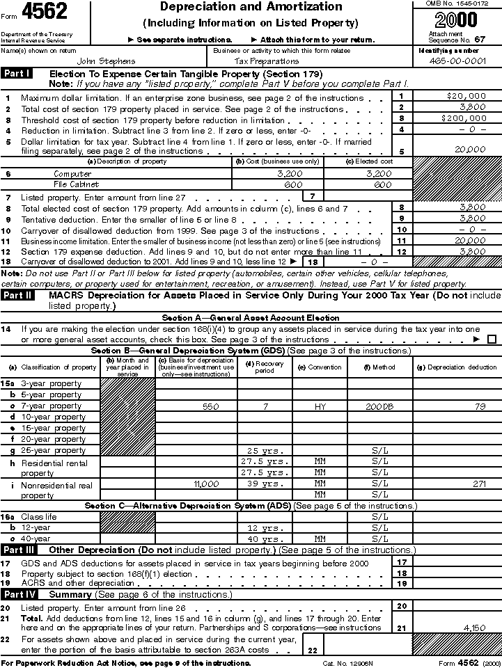
Form 4562. The following bold line references apply to Form 4562.

Part I, lines 1-13. John began using his home for business in January of this year. He purchased a new computer and filing cabinet to use in his business. The computer, used 100% for business, cost $3,200. The filing cabinet cost $600. He elects to take the section 179 deduction for both items.

John completes Part I of Form 4562. He enters the cost of both the computer and filing cabinet, $3,800, on line 2 and completes lines 4 and 5. On line 6, he enters a description of each item, its cost and the cost he elects to expense. He completes the remaining lines in Part I.

Part II, line 15c. John converted to business use a desk and chair he had purchased in 1995 for personal purposes. In 1995 he paid $1,500 for them. The fair market value in 2000 is $550. Since the fair market value is less than the cost, his depreciable basis is $550.

In Part II, line 15c, column (c), he enters $550 for the desk and chair. He completes columns (d) through (f). The furniture is 7-year property under MACRS. He uses the MACRS Percentage Table for 5- and 7-Year Property Using Half-Year Convention or Table A-1 in Publication 946 to find the rate of 14.29% for property placed in service during the first month of the year. He multiplies $550 by 14.29% (.1429) and enters $79 in column (g).

Part II, line 15i. Because this is the first year John used his home for business, he must figure the depreciation on line 15i. On line 15i, column (c), he enters $11,000, the depreciable basis of the business part of his home. (For a discussion on how he figures his depreciation deduction, see Step 3 under Form 8829, Part II.) He enters $271 in column (g).

Part IV, line 21. John totals the amounts on line 12 and line 15 in column (g) and enters the total on line 21. He enters both the section 179 deduction ($3,800) and the depreciation on the furniture ($79) on line 13 of Schedule C. He enters the depreciation on his home ($271) on Form 8829, line 28.

Schedule C. The following bold line references apply to Schedule C.

Line 13. John enters the amount from Form 4562 for his section 179 deduction ($3,800) and the depreciation deduction for his office furniture ($79).

Line 16b. This amount is the interest on installment payments for the business assets John uses in his home office.

Line 25. John had a separate telephone line in his home office that he used only for business. He can deduct $347 for the line.

Lines 28-30. On line 28, he totals all his expenses other than those for the business use of his home, and then subtracts that total from his gross income. He uses the result on line 29 to figure the deduction limit on his expenses for the business use of his home. He enters that amount on line 8 of Form 8829 and then completes the form. He enters the amount of his home office deduction from line 34, Form 8829, on line 30 of Schedule C.

Form 8829, Part I. John uses one room of his home exclusively and regularly to meet clients. In Part I of Form 8829 he shows that, based on the square footage, the room is 10% of his home.

Form 8829, Part II. John uses Part II of Form 8829 to figure his allowable home office deduction.

Step 1. First, he figures the business part of expenses that would be deductible even if he did not use part of his home for business. Because these expenses ($4,500 deductible mortgage interest and $1,000 real estate taxes) relate to his entire home, he enters them in column (b) on lines 10 and 11. He then subtracts the $550 business part of these expenses (line 14) from his tentative business profit (line 8). The result, $25,002 on line 15, is the most he can deduct for his other home office expenses.

Step 2. Next, he figures his deduction for operating expenses. He paid $300 to have his office repainted. He enters this amount on line 18, column (a) because it is a direct expense. All his other expenses ($400 homeowner's insurance, $1,400 roof repairs, and $1,800 heating and lighting) relate to his entire home. Therefore, he enters them in column (b) on the appropriate lines. He adds the $300 direct expenses (line 21) to the $360 total for indirect expenses (line 22) and enters the total, $660, on line 24. Because this amount is less than his deduction limit, he can deduct it in full. The $24,342 balance of his deduction limit (line 26) is the most he can deduct for depreciation.

Step 3. Next, he figures his allowable depreciation deduction for the business use of his home in Part III of Form 8829. The adjusted basis of his home is $130,000, which is less than the fair market value of $160,000. He figures the value of the land to be $20,000. He subtracts the land value from the adjusted basis. He multiplies the result ($110,000) by the percentage on line 7 to get the depreciable basis of the business part of his home ($11,000).

Because he began using the office in January of this year, he uses the MACRS Percentage Table for 39-Year Nonresidential Real Property in this publication or Table A-7a in Appendix A of Publication 946. The depreciation percentage for the first year of the recovery period for assets placed in service in the first month is 2.461%. His depreciation deduction for 2000 (line 40) is $271 (.02461 x $11,000). He enters that amount in Part II on lines 28 and 30. Because it is less than the available balance of his deduction limit (line 26), he can deduct the full depreciation. Since John must also complete Form 4562 for 2000, he enters $271 on line 15i, column (g). See Form 4562, earlier.

Step 4. Finally, he figures his total deduction for his home office by adding together his otherwise deductible expenses (line 14), his operating expenses (line 25), and depreciation (line 31). He enters the result, $1,481, on lines 32 and 34, and on Schedule C, line 30.

John Stephen's--Schedule C

John Stephen's--Form 8829

John Stephen's--Form 4562

Worksheet to Figure the Deduction for Business Use of Your Home

Previous| First | Next

Publication Index | IRS-Forms Main | Home