IRS Tax Forms  
Publication 946 2001 Tax Year

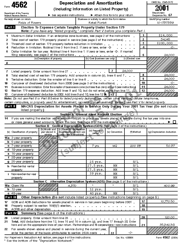
Form 4562

Because Fields of Flowers is a corporation, it reports depreciation on Form 4562. The corporation enters the total depreciation deduction ($10,770.50) for the property placed in service before 2001 on line 17 in Part III.

The delivery truck has seating only for the driver. It is not listed property. If it were listed property, its depreciation would have been reported in Part V of Form 4562.

The corporation reports the depreciation for the file cabinets in Section B, Part II. It uses GDS for this property and applies a mid-quarter convention. On line 15(c), it enters "MQ" in column (e) to show the mid-quarter convention is applied and "200DB" in column (f) to show it is using the 200% declining balance method. It enters the depreciation deduction of $50.87 in column (g).

The corporation reports the depreciation for the store counters and the computer in Section C, Part II. Both properties have a class life assigned to them in the Table of Class Lives and Recovery Periods in Appendix B and neither class life is 12 years or 40 years (lines 16b and 16c). Therefore, the corporation enters the depreciation deduction of $400.99 on line 16(a) in column (g).

The van is listed property. The corporation reports the depreciation for it in Part V of Form 4562. Fields of Flowers has taxable income of $45,389. It elects to take a section 179 deduction of $24,000 on the van. The van weighs over 6,000 pounds. It is not a passenger automobile for the limits discussed under Do the Passenger Automobile Limits Apply? in chapter 4.

The corporation reduces the cost of the van by the amount of the section 179 deduction. It enters "5" in column (f) to show the recovery period in years and "SL" and "MQ" in column (g) to show it is using the straight line method and the mid-quarter convention. It enters the depreciation deduction of $120 in column (h) and the section 179 deduction of $24,000 in column (i).

The corporation enters the amount from line 26 on line 20 and the amount from line 27 on line 7. It completes Part I to determine its allowable section 179 deduction. It adds the amounts on lines 12, 15(c), 16(a), 17, and 20 and enters the total, $35,342.36, on line 21. It rounds the total to $35,342 and enters it on the depreciation line of its tax return.

Depreciation Worksheet, Form 4562

Form 4562, page 1

Form 4562, page 2

Previous| First | Next

Publication Index | IRS-Forms Main | Home