
| Publication 925 |
2001 Tax Year |
Comprehensive Example
HTML Page 2 of 7
This is archived information that pertains only to the 2001 Tax Year. If you are looking for information for the current tax year, go to the Tax Prep Help Area.
The following example shows how to report your passive activities. In addition to Form 1040, Charles and Lily Woods use Form 8582 (to figure
allowed passive activity deductions), Schedule E (to report rental activities and partnership activities), Form 4797 (to figure the gain and allowable
loss from assets sold that were used in the activities), and Schedule D (to report the sale of partnership interests).
General Information
Charles and Lily are married, file a joint return, and have combined wages of $132,000 in 2001. They own interests in the activities listed below.
They are at risk for their investment in the activities. They did not materially participate in any of the business activities. They actively
participated in the rental real estate activities in 2001 and all prior years. Charles and Lily are not real estate professionals.
- Activity A is a rental real estate activity. The income and expenses are reported on Schedule E. Charles and Lily's records show a loss from
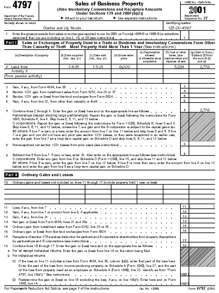
operations of $15,000 in 2001. Their records also show a gain of $2,776 in 2001 from the sale of section 1231 assets used in the activity. That
section 1231 gain is reported in Part I of Form 4797. In 2000 they completed the Worksheets in the instructions for Form 8582 and calculated that
$6,667 of Activity A's Schedule E loss for 2000 was disallowed by the passive activity rules. That loss is carried over to 2001 as a prior year
unallowed loss and will be used in figuring the allowed loss for 2001.
- Activity B is a rental real estate activity. Its income and expenses are reported on Schedule E. Charles and Lily's records show a loss from
operations of $11,600 in 2001. In 2000 they completed the worksheets in the instructions for Form 8582 and calculated that $8,225 of Activity B's
Schedule E loss for 2000 was disallowed by the passive activity rules. That loss is carried over to 2001 as a prior year unallowed loss and will be
used in figuring the allowed loss for 2001.
- Partnership #1 is a trade or business activity and is not a publicly traded partnership (PTP). Partnership #1 reports a $4,000 distributive
share of its 2001 profits to Charles and Lily on line 1 of Schedule K-1 (Form 1065). They report that profit on Schedule E. In 2000 they
completed the worksheets in the instructions for Form 8582 and calculated that $2,600 of their distributive share of the loss from Partnership #1 in
2000 was disallowed by the passive activity rules. That loss is carried over to 2001 as a prior year unallowed loss and will be used in figuring the
allowed loss for 2001.
- Partnership #2 is a trade or business activity and also a PTP. In 2001 Charles and Lily sold their entire interest in Partnership #2. They
do not report that sale on Form 8582 because Partnership #2 is a PTP. They recognize a long-term capital gain of $15,300 ($25,300 selling price minus
$10,000 adjusted basis) that they report on Schedule D. The partnership reports a $1,200 distributive share of its 2001 losses to them on line 1 of
Schedule K-1 (Form 1065). They report that loss on Schedule E. In 2000 they followed the instructions for Form 8582 and calculated that $2,445
of their distributive share of Partnership #2's 2000 loss was disallowed by the passive activity rules. That loss is carried over from 2000 and added
to the $1,200 Schedule E loss for 2001. (For discussion of PTPs, see the instructions for Form 8582.)
- Partnership #3 is a single trade or business activity and is not a PTP. Charles and Lily sold their entire interest in Partnership #3 in
November 2001. They recognize a $4,000 ($15,000 selling price minus $11,000 adjusted basis) long-term capital gain, which they report on Schedule
D.
In 2000, they completed the Worksheets in the Form 8582 instructions and calculated that $3,000 of their distributive share of the partnership's
loss for 2000 was disallowed by the passive activity rules. That loss is carried over to 2001 as a prior year unallowed Schedule E loss. Charles and
Lily's distributive share of partnership losses for 2001 reported on line 1 of Schedule K-1 (Form 1065) is $6,000.
- Partnership #4 is a trade or business activity that is a limited partnership. Charles and Lily are limited partners who did not meet any of
the material participation tests. Their distributive share of 2001 partnership loss, reported on line 1 of Schedule K-1 (Form 1065), is $2,400.
In 2000 they completed the Worksheets in the Form 8582 instructions and calculated that $1,500 of their distributive share of loss for 2000 was
disallowed by the passive activity rules. That loss is carried over to 2001 as a prior year unallowed loss and will be used in figuring the allowed
loss for 2001.
Step One--Completing the Tax Forms Before Figuring the Passive Activity Loss Limits
Charles and Lily complete the forms they usually use to report income or expenses from their activities. They enter their combined wages, $132,000,
on Form 1040. They complete line 8 of Schedule D showing long-term capital gains of $15,300 from the disposition of Partnership #2 and $4,000 from the
disposition of Partnership #3. Partnership #2 is a PTP so it is not entered on Form 8582. The disposition of Partnership #3 is a disposition of an
entire interest in an activity with an overall loss of $5,000 ($4,000 - $3,000 - $6,000) so that partnership also is not entered on Form
8582. They combine the PTP $1,200 current year loss with its $2,445 prior year loss, and also combine the Partnership #3 $6,000 current year loss with
its $3,000 prior year loss, and enter the two combined amounts in column (g) on line 27 of Schedule E, Part II. They enter the $4,000 profit from
Partnership #1 in column (h). Before completing the rest of Part II of Schedule E, they must complete Form 8582 to figure out how much of their losses
from Partnerships #1 and #4 they can deduct.
They complete Schedule E, Part I, through line 22. Their rental activities are passive so they must complete Form 8582 to figure the deductible
losses to enter on line 23.
They enter the gain from the sale of the section 1231 assets of Activity A on Form 4797.
Step Two--Form 8582
and its Worksheets
Charles and Lily now complete Form 8582 and the worksheets that apply to their passive activities. Because they are at risk for their investment in
the activities, they do not need to complete Form 6198 before Form 8582. (The second part of this publication explains the at-risk rules.)
Worksheet 1.
Worksheet 1 is for rental real estate activities with active participation. Charles and Lily enter the gains and losses from Activity A and
Activity B on Worksheet 1. They enter all amounts from the activities even though they already reported the gain of $2,776 from Activity A on Form
4797 because all income or loss from these activities must be taken into account to figure the loss allowed.
- They write "Activity A" on the first line under Name of activity. Then they enter:
- $2,776 gain in column (a) from Form 4797, line 2, column (g),
- ($15,000) loss in column (b) from Schedule E, line 22, column A, and
- ($6,667) prior year unallowed loss in column (c) from their worksheets used in 2000.
They combine the three amounts. The result, ($18,891), is an overall loss so they enter it in column (e).
- Charles and Lily write "Activity B" on the second line under Name of activity. Then they enter:
- ($11,600) loss in column (b) from Schedule E, line 22, column B, and
- ($8,225) prior year unallowed loss in column (c) from their 2000 worksheets.
Then they combine these two figures and enter the total loss, ($19,825), in column (e).
- They separately add the amounts in columns (a), (b), and (c).
- They enter $2,776 in column (a) on the Total line and also on Form 8582, Part I, line 1a.
- They enter ($26,600) in column (b) on the Total line and also on Form 8582, Part I, line 1b.
- They enter ($14,892) in column (c) on the Total line and also on Form 8582, Part I, line 1c.
- They combine lines 1a, 1b, and 1c, Form 8582, and put the net loss, ($38,716), on line 1d.
Worksheet 2.
Partnership #1 and Partnership #4 are nonrental passive activities so Charles and Lily enter the appropriate information about those activities on
Worksheet 2 similar to the way they reported their rental activities on Worksheet 1. Then they enter the totals on Form 8582, Part I, lines 2a through
2d.
Reporting income from column (d), Worksheets 1 and 2.
Activities that have an overall gain in column (d) are not used any further in the calculations for Form 8582. At this point, all income and losses
from those activities should be entered on the forms or schedules that would normally be used. Charles and Lily have one activity with an overall gain
($4,000 - $2,600 = $1,400). This is Partnership #1, which is shown in Worksheet 2. They already reported the $4,000 income from this activity on
Part II, Schedule E. They now enter the entire $2,600 loss on Schedule E as well.
Step Three--Completing
Form 8582
Next, Charles and Lily complete Part II, Form 8582, to determine the amount they can deduct for their net losses from real estate activities with
active participation (Activities A and B). They enter all amounts as though they were positive (without brackets around losses). They then complete
Part III of Form 8582.
- They enter $38,716 on line 4 since this is the smaller of the loss on line 1d or the loss on line 3.
- They enter $150,000 on line 5 since they are married and filing a joint return.
- They enter $138,655, their modified adjusted gross income, on line 6. (See the instructions for Form 8582 for a discussion of modified
adjusted gross income.) The $138,655 is made up of their wages, $132,000, plus their overall gain of $11,655 from Partnership #2, a PTP, plus their
$5,000 overall loss from Partnership #3.
On Schedule D, they reported long-term gains of $15,300 from the PTP disposition and $4,000 from the Partnership #3 disposition. Also, on Schedule
E they combined the PTP 2001 loss of $1,200 with its prior year loss of $2,445, and combined the Partnership #3 2001 loss of $6,000 with its prior
year loss of $3,000. Netting these amounts gives them the PTP overall gain of $11,655 ($15,300 - $1,200 - $2,445) and the Partnership #3
overall loss of $5,000 ($4,000 - $6,000 - $3,000) that were used in figuring modified adjusted gross income.
- They subtract line 6 from line 5 and enter the result, $11,345, on line 7.
- They multiply line 7 by 50% and enter the result, $5,673, on line 8. No matter what the result, they cannot enter more than $25,000 on line
8.
- They enter the smaller of line 4 or line 8, $5,673, on line 9.
- They add the income on lines 1a and 2a and enter the result, $6,776, on line 10.
- They add lines 9 and 10 and enter the result, $12,449, on line 11.
Step Four--Completing Worksheet 3
Charles and Lily must complete Worksheet 3 because they entered an amount on line 9 of Form 8582 and have two activities, each with an overall loss
in column (e) of Worksheet 1. Worksheet 3 allocates the amount on line 9 (their special allowance for active participation rental real estate
activities) between Activity A and Activity B.
- In the two left columns, they write the name of each activity, A and B, and the schedule each activity is reported on, Schedule
E.
- They fill in column (a) with the losses from Worksheet 1, column (e). They add up the amounts, and enter the result, $38,716, in the
Total line without brackets.
- They figure the ratios for column (b) by dividing each amount in column (a) by the amount on the column (a) Total line. They
enter each result in column (b). The total of the ratios must equal 1.00.
- They multiply the amount from line 9, Form 8582, $5,673, by each of the ratios in Worksheet 3, column (b) and enter the results on the
appropriate line in column (c). The total must equal $5,673.
- They subtract column (c) from column (a) and enter each result in column (d).
Step Five--Completing Worksheet 4
Worksheet 4 must be completed if any activity has an overall loss in column (e) of Worksheet 2 or a loss in column (d) of Worksheet 3 (or column
(e) of Worksheet 1 if Worksheet 3 was not needed). This worksheet allocates the unallowed loss among the activities with an overall loss. Charles and
Lily fill out Worksheet 4 with the activities from Worksheet 3 and the one activity showing a loss in Worksheet 2, column (e). They fill in the name
of each activity and the schedule or form on which each loss will be reported in the two left columns of Worksheet 4.
- In column (a), they enter the losses from Worksheet 2, column (e) and Worksheet 3, column (d). These losses are entered as positive numbers,
not in brackets. They add the numbers and enter the total, $36,943, on the Total line.
- They divide each of the losses in column (a) by the amount on the column (a) Total line, and enter each result in column (b). The
ratios must total 1.00.
- Now they use the computation worksheet for column (c) (see Worksheet 4 in the instructions for Form 8582) to figure the unallowed
loss to allocate in column (c).
- On line A of the computation worksheet, they enter the amount from line 3 of Form 8582, $41,216, as a positive number.
- On line B, they enter the amount from line 9 of Form 8582, $5,673.
- They subtract line B from line A and enter the result, $35,543, on line C. This is the total unallowed loss.
They multiply line C, $35,543, by each of the ratios in column (b) and enter the results in column (c). These amounts are the unallowed losses
from each activity and must add up to $35,543.
Step Six--Using
Worksheets 5 and 6
Charles and Lily now decide whether they must use Worksheet 5, Worksheet 6, or both to figure their allowed losses. If the loss from any activity
entered on Worksheet 4 is reported on only one form or schedule, then Worksheet 5 is used for that activity. If an activity has a loss that is
reported on two or more schedules or forms (for example, a loss that must be reported partly on Schedule C and partly on Form 4797) or on different
parts of the same form or schedule (for example, 28%-rate and non-28%-rate capital losses reported in Part II of Schedule D), Worksheet 6 is used for
that activity. All of the activities Charles and Lily entered on Worksheet 4 will be reported on Schedule E. Therefore, they use Worksheet 5 to figure
the allowed loss for each activity. (Worksheet 6 is not shown here.)
Worksheet 5.
They fill out Worksheet 5 with the activities from Worksheet 4.
- They enter the name of each activity and the schedule to be used in the two left columns of Worksheet 5.
- In column (a), they enter the total loss for each activity. This includes the current year loss plus the prior year unallowed loss. They
find these amounts by adding columns (b) and (c) on Worksheets 1 and 2.
- In column (b), they enter the unallowed loss for each activity already figured in Worksheet 4, column (c). They must save this information
to use next year in figuring their passive losses.
- In column (c), they figure their allowed losses for 2001 by subtracting their unallowed losses, column (b), from their total losses, column
(a). These allowed losses are entered on the appropriate schedules.
Reporting allowed losses.
Charles and Lily enter their allowed losses from Activities A and B on Schedule E, Part I, line 23, because these are rental properties. They
report their allowed loss from Partnership #4 on Schedule E, Part II.
Step Seven--Finishing the Reporting of the Passive Activities
Charles and Lily summarize the entries on Schedule E, Schedule D, and Form 4797, and enter the amounts on the appropriate lines of their Form 1040.
They enter:
- The total Schedule D gain, $22,076, on line 13, and
- The Schedule E loss, ($21,094), on line 17.
Charles and Lily are now able to complete their tax return, having correctly limited their losses from their passive activities.
Form 1040, page 1
Schedule D (Form 1040), page 1
Schedule E (Form 1040), page 1
Schedule E (Form 1040), page 2
Form 4797, page 1
Form 8582
Worksheets 1-5 for Form 8582
Previous | First | Next
Publication Index | 2001 Tax Help Archives | Tax Help Archives | Home
|